
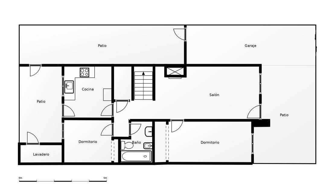
Откройте для себя этот очаровательный таунхаус с уникальным стилем, расположенный в зоне расширения Ориуэла Коста, в эксклюзивном районе PAU 26. С общей площадью 89 м2 этот объект идеально подходит для тех, кто ищет комфорт и удобство всего в нескольких минутах от моря (всего 3.500 метров).. Дом распределён на два этажа. На первом этаже находятся две просторные спальни с двуспальными кроватями, полностью оборудованная ванная комната и отдельная кухня с выходом в столовую, а также практичная прачечная. На втором этаже расположена просторная главная спальня с собственной ванной комнатой (en-suite), обеспечивающая дополнительный комфорт и приватность.. Благодаря южной ориентации дом получает отличное естественное освещение в течение всего дня. Снаружи имеется частный сад с гаражом для автомобиля, что обеспечивает дополнительное удобство.. Кроме того, в комплексе есть большой общий бассейн и детские зоны, идеально подходящие для семей. Расположение отличное — в одном из новых и быстро развивающихся районов Ориуэла Коста, со всеми необходимыми услугами поблизости. Рядом также находятся престижные гольф-поля Villamartín и Campoamor, что добавляет ценности для любителей гольфа и тех, кто ищет спокойную и эксклюзивную среду.. Объект имеет удобный доступ к общественному транспорту, торговым центрам, школам и всем необходимым услугам, что делает его идеальным как для постоянного проживания, так и для отдыха.. Цена: 242.000 €. Налоги и расходы на покупку не включены (в соответствии с действующим законодательством). Подробная разбивка дополнительных расходов будет предоставлена до бронирования.. В случае сделки с двойным посредничеством профессиональная комиссия, оплачиваемая покупателем, составляет 1,5% от окончательной цены продажи, минимум 3.000 €, плюс НДС (21%), если не согласовано иное. Эти расходы не включены в указанную цену.
Эта информация может подвеграться изменениям и не является частью будущего контракта. Предложение может быть изменено или отозвано без предварительного уведомления. Расходы на покупку не включены в цену обьекта