свойства
свойства

Новая отдельная вилла с частным бассейном на продажу в Торревьехе, провинция Аликанте.

Ссылка:SE65-08
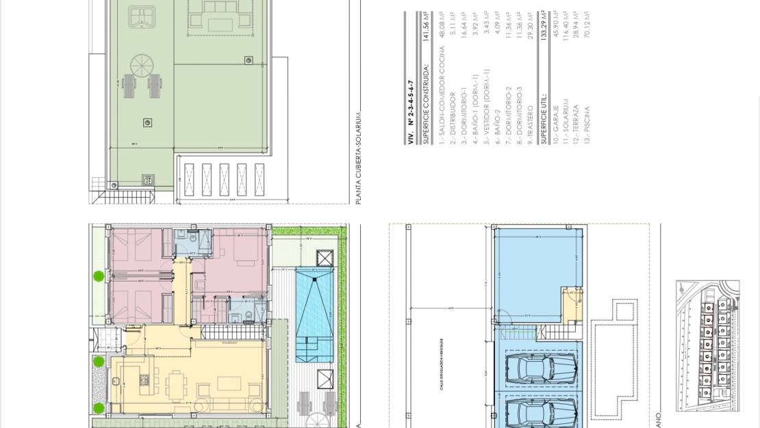
141m2
247m2
3
2

Характеристики

спальни: 3
В ванных комнатах: 2
построен: 141m2
участок: 247m2
Ты готовишь: 1
Парковочные места: 1
Класс энергопотребления: В процессе
Год постройки: JUNIO 2026
Балкон: 116 m2
Частный сад
Кладовая
Терраса
Частный бассейн
Жилой
Гараж
Энергетический рейтинг
Энергетический рейтинг:
В процессе

Описание

Современные отдельные виллы с собственным бассейном в Торревьехе

Воспользуйтесь уникальной возможностью приобрести совершенно новую отдельную виллу на побережье Коста-Бланка. Эти потрясающие дома сочетают в себе современную архитектуру, высококачественную отделку и идеальное расположение у моря — идеальный вариант для постоянного проживания, отдыха или инвестиций.

Особенности недвижимости

  • 3 или 4 просторные спальни
  • Частный бассейн и солнечная терраса
  • Частный гараж и кладовая
  • Открытая планировка гостиной с большими окнами и естественным освещением
  • Просторные участки с открытым пространством для отдыха, обедов и развлечений
  • Высококачественные материалы и современный дизайн во всем

Привилегированное расположение в Торревьехе

Эти виллы расположены в тихом, но в то же время хорошо развитом жилом районе Торревьехи , недалеко от пляжей и основных объектов инфраструктуры. Наслаждайтесь лучшим из двух миров: тишиной и уединением дома и всей городской жизнью всего в нескольких минутах езды.

Торревьеха предлагает:

  • Прекрасные песчаные пляжи и кристально чистая вода
  • Широкий выбор ресторанов, баров и кафе
  • Торговые центры, супермаркеты и еженедельные уличные рынки
  • Спортивные и оздоровительные центры, включая поля для гольфа поблизости
  • Семейные развлечения: кинотеатры, аквапарки, пристани для яхт и многое другое
  • Отличное дорожное сообщение и наличие общественного транспорта
  • Мягкий средиземноморский климат с более чем 300 солнечными днями в году

Почему стоит выбрать этот проект?

  • Отдельные дома для максимальной конфиденциальности
  • Частный бассейн и открытое пространство для вашего образа жизни
  • Идеально подходит для семей, пенсионеров и удаленных работников.
  • Большой арендный потенциал в востребованном районе
  • Близость к природе, соленым озерам и побережью Средиземного моря
  • Умная инвестиция в одном из самых популярных районов Коста Бланки

Свяжитесь с нами сегодня, чтобы договориться о просмотре или получить дополнительную информацию.

Место нахождения

экономика

Эта информация может подвеграться изменениям и не является частью будущего контракта. Предложение может быть изменено или отозвано без предварительного уведомления. Расходы на покупку не включены в цену обьекта

Расчет ипотеки

Обмен валют

  • Фунтов стерлингов: 518.275 GBP
  • Русский рубль: 518.275 RUB
  • швейцарский франк: 549.840 CHF
  • китайский юань: 4.758.037 CNY
  • доллар: 696.805 USD
  • шведская крона: 6.447.420 SEK
  • Норвежская корона: 6.614.318 NOK

Свяжитесь с нами

Responsable del tratamiento: Spain Estate, Finalidad del tratamiento: Gestión y control de los servicios ofrecidos a través de la página Web de Servicios inmobiliarios, Envío de información a traves de newsletter y otros, Legitimación: Por consentimiento, Destinatarios: No se cederan los datos, salvo para elaborar contabilidad, Derechos de las personas interesadas: Acceder, rectificar y suprimir los datos, solicitar la portabilidad de los mismos, oponerse altratamiento y solicitar la limitación de éste, Procedencia de los datos: El Propio interesado, Información Adicional: Puede consultarse la información adicional y detallada sobre protección de datos Aquí.
WhatsApp