
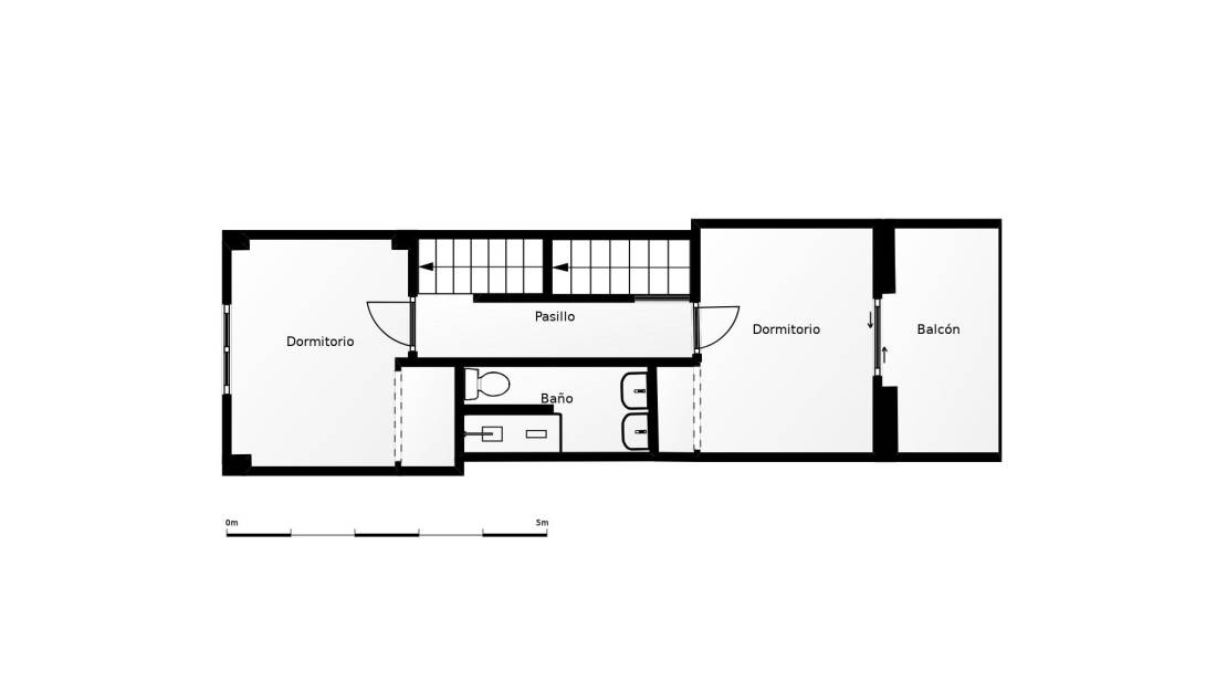
En pleno centro de Playa Flamenca, a un paseo del centro comercial Zenia Boulevard, de las playas, de zonas deportivas, de ocio y colegios, se encuentra este precioso y luminoso triplex adosado mirando al Sur.. La vivienda se encuentra dentro de un residencial vallado y con puertas automáticas, con amplias zonas de parking para el coche en las calles de acceso y con zona de piscina comunitaria en su centro, aislada y sin ruido ni tráfico alguno.. Tiene orientación Sur, por tanto con sol prácticamente todo el día y cuenta también con un solarium en su parte trasera para poder descansar a la sombra en pleno verano cuando hace demasiada calor en la parte frontal de la vivienda.. Cuenta con una terraza en su parte delantera a la entrada de la propiedad, para poder tomar el sol todo el año. Se accede a la vivienda que cuenta con un salón-comedor con chimenea, una cocina independiente para poder cocinar con la puerta cerrada y no tener olores ni grasa en el resto de la vivienda, una salida directa desde ésta a un patio cubierto con techo de aluminio y cristal, que puede ser utilizado como salón segundo, como lavadero e incluso como dormitorio de personas que no puedan subir a las plantas superiores ya que cuenta con un cuarto de aseo con ducha.. En planta primera a la que se accede a través de una escalera interior, cuenta con dos dormitorios con armarios empotrados y uno de ellos con balcón, y un cuarto de baño completo con ducha de obra, teniendo en la tercera y última planta superior una tercera habitación abuhardillada con cuarto de baño con ducha perfecta para que niños o adolescentes hagan su vida porque cuenta con un solarium-terraza con salida únicamente desde ésta.. La vivienda está amueblada, tiene todos los electrodomésticos en la cocina y en perfectas condiciones con todo lo necesario para entrar a vivir inmediatamente en ella.. Sea como vivienda vacacional o para vivir todo el año, merece la pena una visita para comprobar sus múltiples ventajas y utilidades. Especialistas en Orihuela Costa
Esta información que se proporciona aquí está sujeta a errores y no forma parte de ningún contrato. La oferta se puede cambiar o retirar sin previo aviso. Los precios no incluyen los costes de compra