
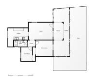
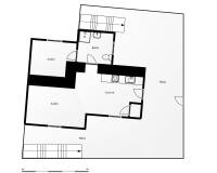
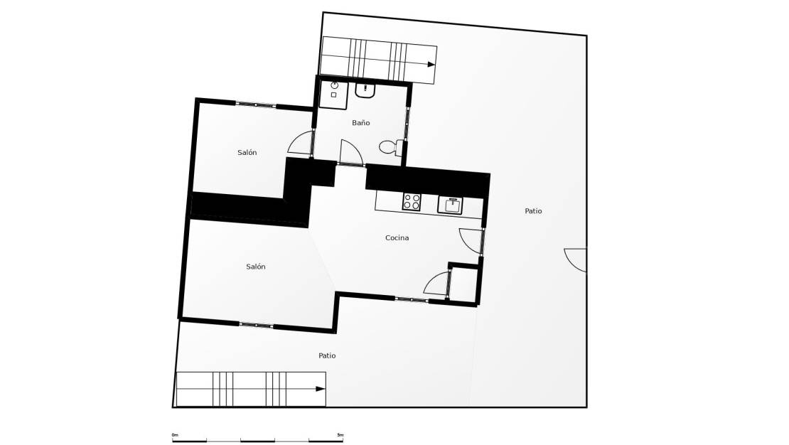
Encantador chalet independiente en esquina en La Marina – ¡Oportunidad única por solo 149.000 €!. . Descubre este acogedor chalet independiente en esquina situado en la exclusiva urbanización La Marina, un entorno tranquilo y bien comunicado, ideal tanto para residencia habitual como para disfrutar de tus vacaciones junto al mar. Su excelente ubicación te permitirá estar a tan solo 3 km de la playa de La Marina y muy cerca del aeropuerto de Alicante, lo que garantiza comodidad y accesibilidad en todo momento.. . Gracias a su orientación sureste, la vivienda es muy luminosa y disfruta del sol durante todo el día, creando un ambiente cálido y acogedor. La propiedad cuenta con una parcela en esquina que aporta mayor privacidad y amplitud, además de un parking techado privado dentro de la parcela, ideal para mantener tu vehículo resguardado.. . En la planta principal registrada en escritura, encontrarás dos habitaciones, un baño completo, una cocina equipada y un salón amplio y confortable. En la planta inferior, que no se encuentra registrada, la vivienda ofrece una habitación adicional, salón, cocina y baño, un espacio perfecto para invitados o como zona independiente de descanso.. . El chalet se encuentra en excelente estado de conservación, listo para entrar a vivir sin necesidad de realizar reformas. Esta propiedad combina funcionalidad, luminosidad y una ubicación excepcional, convirtiéndose en una gran oportunidad para quienes buscan tranquilidad cerca del mar Mediterráneo.. . No dejes pasar esta oportunidad y ven a visitarlo hoy mismo. ¡Te encantará!
Esta información que se proporciona aquí está sujeta a errores y no forma parte de ningún contrato. La oferta se puede cambiar o retirar sin previo aviso. Los precios no incluyen los costes de compra