Propiedades
Propiedades

Chalets independientes de obra nueva con piscina privada en San Miguel de Salinas

Ref.:SE34-07-D
126m2
350m2
3
3
Desde 591.000€
Notificar bajada de precio

Características

Habitaciones: 3
Baños: 3
Construidos: 126m2
Parcela: 350m2
Cocinas: 1
Calificación energética: En proceso
Año de construcción: 2025
Jardín privado
Terraza
Piscina privada
Parking
Residencial
Puerta motorizada
Calificación energética
Calificación energética:
En proceso

Descripción

Villas de nueva construcción con impresionantes vistas en San Miguel de Salinas

Spain Estate presenta este excepcional nuevo desarrollo en la encantadora ciudad de San Miguel de Salinas, ofreciendo villas contemporáneas de tres o cuatro dormitorios, amplias parcelas y generosas terrazas con impresionantes vistas al campo y al mar Mediterráneo.

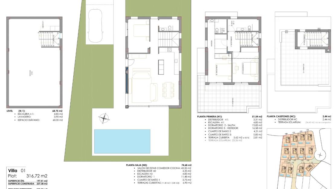
Estas modernas viviendas, cuidadosamente diseñadas, se distribuyen en dos plantas y ofrecen una superficie total construida de 126 m² en parcelas de entre 304 y 472 m². La planta baja cuenta con un luminoso salón-comedor de planta abierta con cocina totalmente equipada, un amplio dormitorio con armario empotrado y un baño completo. Tanto el salón como el dormitorio tienen acceso directo al jardín y a la piscina privada.

En la planta superior encontrará dos dormitorios adicionales: uno con armario empotrado y el otro con vestidor y baño en suite. Esta planta también incluye un tercer baño y acceso a una amplia terraza solárium con vistas panorámicas a la naturaleza y la costa.

Hay Mejoras opcionales disponibles , incluyendo un amplio sótano que puede configurarse como sala de estar adicional, gimnasio, bodega, dormitorio adicional o garaje. También se puede añadir un espacioso solárium en la azotea , ideal para relajarse, tomar el sol o disfrutar de las vistas panorámicas con jacuzzi o zona de relax.

Cada villa se completa con acabados de alta calidad como suelo radiante en baños, sistema de agua caliente por aerotermia, aire acondicionado por conductos, electrodomésticos, mamparas de ducha y puerta de aparcamiento motorizada.

Ubicada a un corto paseo del tradicional pueblo español de San Miguel de Salinas, los residentes pueden disfrutar de una amplia gama de servicios, como tiendas, restaurantes, supermercados y colegios. La zona también goza de una ubicación ideal para los amantes del golf, con varios campos de golf prestigiosos como Las Colinas, Las Ramblas y Campoamor en las cercanías. Las hermosas playas de arena de Orihuela Costa y Torrevieja están a poca distancia en coche.

Estas villas ofrecen la combinación perfecta de confort moderno, belleza natural y proximidad a lo mejor de la Costa Blanca. Tanto si busca una residencia permanente, una casa de vacaciones o una inversión sólida, no se pierda esta promoción.

Contáctenos hoy para obtener más información o concertar una visita.

Localización

Economía

Esta información que se proporciona aquí está sujeta a errores y no forma parte de ningún contrato. La oferta se puede cambiar o retirar sin previo aviso. Los precios no incluyen los costes de compra

Calcular hipoteca

Cambio de divisas

  • Libras: 512.515 GBP
  • Rublo Ruso: 512.515 RUB
  • Franco Suizo: 542.420 CHF
  • Yuan Chino: 4.705.897 CNY
  • Dolar: 680.655 USD
  • Corona Sueca: 6.428.898 SEK
  • Corona Noruega: 6.612.404 NOK

Contáctanos

Responsable del tratamiento: Spain Estate, Finalidad del tratamiento: Gestión y control de los servicios ofrecidos a través de la página Web de Servicios inmobiliarios, Envío de información a traves de newsletter y otros, Legitimación: Por consentimiento, Destinatarios: No se cederan los datos, salvo para elaborar contabilidad, Derechos de las personas interesadas: Acceder, rectificar y suprimir los datos, solicitar la portabilidad de los mismos, oponerse altratamiento y solicitar la limitación de éste, Procedencia de los datos: El Propio interesado, Información Adicional: Puede consultarse la información adicional y detallada sobre protección de datos Aquí.

© 2026 Spain Estate · Nota legal · Privacidad · Cookies · Mapa Web

WhatsApp