
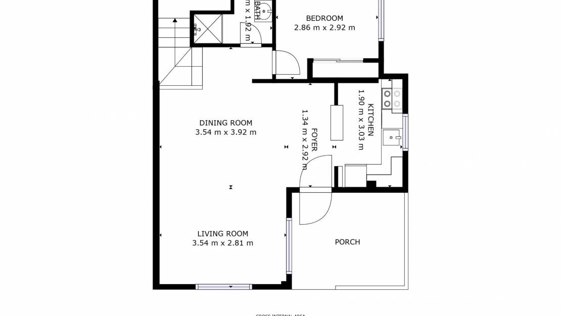
En la pintoresca zona de Playa Flamenca en Orihuela Costa, se encuentra una vivienda que parece haber sido diseñada para enamorados. Desde el momento en que se atraviesa la puerta blindada de la propiedad, se siente el amor y el cuidado que se han dedicado a cada detalle de la misma.En la planta baja se encuentra el salón, cocina, un dormitorio y 1 baño. En la planta primera, a la que se accede por una escalera interior, nos encontramos con 2 dormitorios y 1 baño. Con una superficie de 99 metros cuadrados, esta hermosa casa adosada cuenta con tres habitaciones dobles, dos baños y una cocina totalmente equipada. La carpintería interior de madera y el suelo de gres agregan un toque de calidez y elegancia, mientras que las ventanas de aluminio con climalit brindan una vista despejada hacia los alrededores. La orientación sureste de la casa asegura que los rayos del sol se cuelen en cada rincón, iluminando el espacio y añadiendo un brillo especial. Además, el aire acondicionado y la piscina comunitaria garantizan una temperatura perfecta en los días más calurosos. Un balcón, una terraza y un solárium ofrecen espacios para relajarse y disfrutar de la brisa marina y del paisaje circundante, mientras que el jardín vallado es un lugar perfecto para celebrar reuniones al aire libre con amigos y familiares. Pero la belleza de esta propiedad no termina aquí, ya que está rodeada por una comunidad vibrante y llena de vida, con todo lo necesario a mano. Desde centros comerciales hasta colegios, hospitales, parques y supermercados, todo lo que necesita está a poca distancia. Por todo esto, esta casa es perfecta para aquellos que buscan un hogar para enamorados, donde la elegancia y la calidez se combinan para crear un ambiente romántico e interesante. Con un precio de venta de 188.000 euros y una cuota de comunidad de 340 euros, no hay mejor momento para hacer realidad tus sueños de amor en un lugar como este.
Esta información que se proporciona aquí está sujeta a errores y no forma parte de ningún contrato. La oferta se puede cambiar o retirar sin previo aviso. Los precios no incluyen los costes de compra